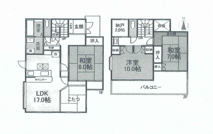
【 一戸建て 】オール電化戸建賃貸住宅。LDKに掘りごたつ式小上がりの畳コーナー、納戸、玄関吹き抜け、対面カウンターキッチン、IHクッキングヒーター、2F10帖洋室は2部屋に仕切ることもできる間取りです。
| 最寄駅 | 所在地 | 間取り | 面積 | 築年月 | 賃料 管理費等 | 敷金 礼金 |
|---|---|---|---|---|---|---|
JR日光線鹿沼駅 徒歩 6分 | 鹿沼市上野町 | 3 SLDK | 114.68㎡㎡ | 1993年12月 | 79,000円 |
- - |
内見できます!0289-62-8544へお電話ください】オール電化戸建賃貸住宅。LDKに掘りごたつ式小上がりの畳コーナー、納戸、玄関吹き抜け、対面カウンターキッチン、IHクッキングヒーター、2F10帖洋室は2部屋に仕切ることもできる間取りです。
物件写真・間取り
物件概要
| 交通機関 | JR日光線鹿沼駅 徒歩 6分 |
|---|
| 間取り詳細 | LDK17帖、洋室10帖、和室8帖、和室7帖、S2帖 |
|---|
| 建物構造 | 木造 |
|---|
| 所在階 / 階数 | 2階建 |
|---|
| 主要採光面 | 南側 |
|---|
| 駐車場 | 2分無料 |
|---|
| 住宅保険 | 2年毎 |
|---|
| 保険料 | 27,000円 |
|---|
| 契約期間 | 2年 |
|---|
| 引渡 | 相談 |
|---|
| 現況 | 空 |
|---|
| 設備・条件 | B・T別 オートバス シャワー 追焚機能 トイレ トイレ2ヶ所 温水洗浄便座 洗面所 洗面台 シャワー付洗面化粧台 洗面所独立 3口以上コンロ IHクッキングヒーター カウンターキッチン システムキッチン 収納スペース 床下収納 室内洗濯機置場 洗濯機置場 給湯 出窓 フローリング エアコン BS端子 ダブルロックドア モニタ付インターホン バルコニー ワイドバルコニー ルーフバルコニー 庭10坪以上 専用庭 縁側 駐車場2台分 |
|---|
| 備考 | 3年毎の定期借家契約となります。 定期借家なので原則期間満了までの利用が必要です。 賃借人は転勤、療養、親族の介護その他やむを得ない事情により本物件を自己の生活の本拠として使用が困難となった場合に貸主より承認された場合は1ヵ月前通知により解約可能。 |
|---|
| 取引態様 | 媒介 |
|---|
物件地図左上の人型アイコンを地図上にドラッグするとストリートビューで表示されます。
鹿沼市上野町


















